Khotyanivka House
  • Проєкт Khotyanivka House
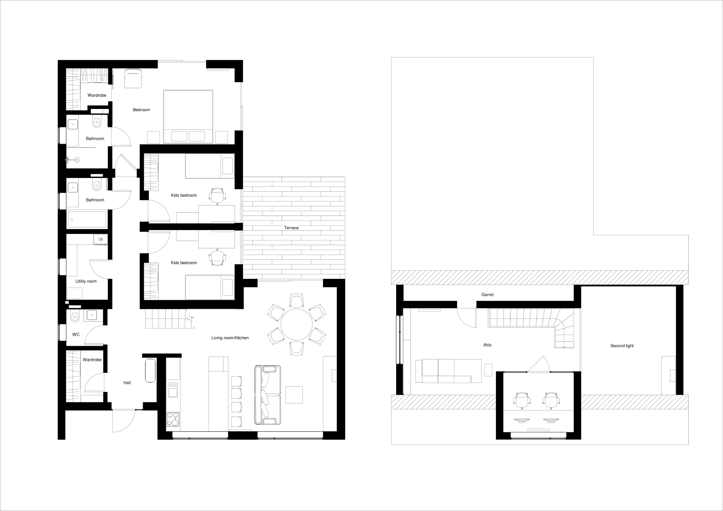
  • Загальна площа будинку 172 м²
  • Кількість поверхів 2
  • Локація Київська обл., с. Хотянівка, Україна
  • Статус проєкт
  • Команда Наталія Пристенська, Роман Глух, Євгенія Волкова, Єлизавета Леньова

У затишному приватному будинку, спроектованому для сімейної пари, враховано ергономіку простору. Наша команда розробила дизайн інтер’єру помешкання, він вийшов досить лаконічним та атмосферним.

Дотримуючись принципів ергономіки, ми подбали, щоб кожна зона була максимально функціональною: облаштували простору двоколірну кухню з їдальнею, розмістили антресоль під покрівлею, де розташовано кабінет з робочим простором для двох.

Майстер-спальня зі супутніми приміщеннями – гардеробом і санвузлом – вражає просторістю. Також спроектовано дитячу кімнату та підсобні приміщення.