Skyline Hotel Interiors
  • Number of storeys 7
  • Penthouses are located on the top three storeys, and the underground story is fully equipped for parking
  • Area of typical apartments From 35 m² to 150 m²
  • Area of penthouses From 150 m² to 320 m²
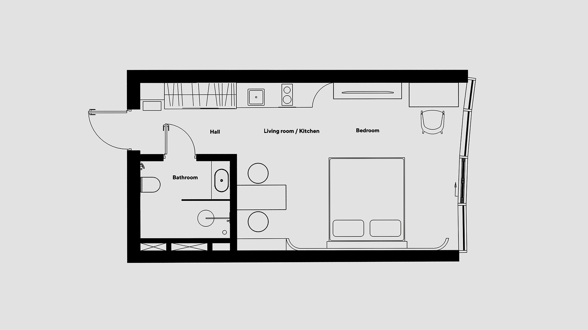
  • Area of standard rooms From 25 m² to 85 m²
  • Total number of apartments in the complex 225
  • Number of standard rooms in the hotel 71
  • Land parcel area 22,600 m²
  • Footprint area 5,600 m²
  • Total building area 47,750 m²
  • Location Baku, Azerbaijan
  • Status Scheduled for completion in 2025
  • Architecture Ihor Osadchuk, Pavlo Hladkevych, Igor Lapatiev, Vasily Nikolishin, Mariia Chernysheva, Anna Shardakova, Yevhenii Tromsa
  • Interior Design Yevheniia Volkova, Serhiy Sunko, Yevhen Koshel, Roman Hlukh, Denys Demeshonok, Yelizaveta Lenova

The impressive exterior of Skyline seems to have seamlessly integrated into the interior: neutral color combinations, and subtle elements – all together creating a tangible harmony in the space. By the way, all apartments in the apartment-hotel are rented out with a finished interior. Due to the well-executed room design, the owner can decorate the space in any interior style.

In the development of the design of typical hotel rooms, we have opted for modern, concise interiors with active natural textures. Skyline Hotel offers 3 types of design development: “mini” room, “standard” room, and deluxe room.

All types of apartment rooms are equipped with kitchen niches, which are “hidden” behind a system of sliding facades covered in dark wood. Bright furniture accents are added to the natural materials. The headboard of the typical sleeping area is made of textile panels to achieve maximum acoustic comfort during rest.